Não conhecia Bagé quando, ao final de 2003, fui chamado para ver uma antiga charqueada localizada nas cercanias dessa cidade. O objetivo era elaborar um projeto de restauração de alguns dos seus bens remanescentes que tinham sido tombados pela municipalidade: casa-grande, igreja e coreto. “Um trabalho modesto”, tinha me avisado Fernando Schuler, produtor cultural incumbido de viabilizar a preservação do lugar. O patrocínio estava garantido pela Copesul, hoje Braskem, através de seu presidente Luis Fernando Cirne Lima, sensível à história e à cultura do lugar. A condição era que o projeto deveria agregar co-patrocinadores locais e que a obra pronta teria que encontrar os meios de se auto-sustentar. Isso agregava, o que é cada vez mais comum, um ingrediente político-gerencial ao trabalho. Ao arquiteto, hoje, não basta apenas desenhar, ele também tem que ajudar a projetar o percurso de viabilização do projeto, o que, de alguma forma, também depende do desenho que ele vai fazer. Tudo isso, mais a quantidade de novos ingredientes que saltavam aos olhos na medida que fui me aproximando do local, fez com que eu chegasse à conclusão: o desafio era enorme!
Ainda na estrada, tinha ficado impressionado com a beleza da topografia da região. Saindo da BR-290 em direção ao sul, rochas gigantescas que afloram abruptamente do chão vão perdendo dramaticidade até se transformarem em suaves ondulações que se perdem Uruguai adentro. Lembrei dos livros de história que contavam dos gaúchos que viveram ali, controlando a fronteira, atentos a qualquer movimento castelhano invasor... De fato, a visão que se tem dali é de uma profundidade infinita. São mais de 150km de campo e gado, onde pude contar nos dedos as poucas casas que vi. Numa parada para um café, no que já tinha sido um posto de combustíveis, pude desfrutar a sabedoria de um proprietário satisfeito: “aqui se vive numa pobreza equilibrada”.
Ao chegar a Bagé, o que me chamou à atenção foi a quantidade de obras de valor arquitetônico que a cidade ainda guardava. Casas alinhadas junto à calçada, com portas e janelas com forte verticalização, mostravam solidez e boa construção como as de uma rua de Montevidéu. Fiquei pensando na riqueza que essa cidade já teve e na sorte de tudo estar tão intacto, como se um vesúvio pampeano tivesse deitado suas cinzas por ali. Nem tanto, pois depois de umas caminhadas mais, descobri que a fúria demolidora-modernizadora dos anos 1970 tinha atacado o antigo mercado público e deixado outras marcas pela cidade. Ficou claro que a beleza do quadro que eu via era episódica e frágil. Lembrei que meu próprio trabalho carregava uma dicotomia de alto risco: valorizar o passado através de projetos revitalizadores que os tornem contemporâneos traz dentro de si o perigo inevitável da destruição. A arte, neste caso, está na medida das ações projetuais.
Na charqueada, fomos recebidos por Yerecê Moglia (1) que, como presidente da Associação Pró Santa Thereza, liderava a luta pela preservação das obras construídas pelo Visconde Ribeiro Magalhães. A arquiteta Maria de Fátima Schmidt Barbosa e outros professores da Faculdade de Arquitetura da URCAMP, a universidade local, davam o suporte técnico para as ações empreendidas até então. O grupo já vinha trabalhando sem muitos recursos na recuperação da igreja desde que a Mitra Diocesana de Bagé tinha-a cedido à universidade, mas sentiam falta de um norte para a revitalização e aproveitamento daqueles bens. Junto com os edifícios, a Associação dispunha de quase 5ha de terras que pertenceram a Rede Ferroviária Federal. A paisagem era de uma fazenda, com suaves colinas e largo horizonte.
A Vila de Santa Tereza, distante 6km do centro da cidade, ao primeiro olhar, mostrou mais uma singela pobreza do que qualquer grandeza. Foi um pouco curioso ver a porta principal da igreja abrir diretamente para o pasto, ficando de costas para a estrada principal (foto 1). Ladeada por várias casas, o conjunto formava um estranho alinhamento voltado para o campo aberto. Do átrio da igreja dava para ver um coreto coberto por palmeiras (foto 2) e mais ao fundo duas fachadas em ruínas de um imponente sobrado (foto 3). Entre essas duas construções, vagões de carga ocupavam o pátio de manobras da companhia ferroviária. As senhoras que tinham me feito chegar ali, contavam com entusiasmo histórias que davam sentido a tudo o que eu via. Aquelas construções todas, na verdade se alinhavam à antiga ferrovia, que tinha sido deslocada para mais adiante. À direita da igreja ainda dava para ver a pequena estação e a chaminé de uma das charqueadas, à esquerda, outra chaminé de outra charqueada (foto 4). Agora sim, fazia sentido; a linha do trem organizava a produção e a vida da Vila de Santa Tereza. Como puderam retirar os trilhos e apagar o registro dessa memória?
Entre a igreja, projeto de 1909, de Pedro Obino, e duas casas geminadas, ainda se via uma alvenaria muito rasa junto ao capim, formando um perfeito retângulo do que tinha sido o teatro Santo Antônio (foto 5). Teatro onde passavam filmes, me disseram. E como seria bom reavê-lo, completaram. Dele, não consegui ver nenhum registro ou foto. O coreto, mais adiante, não me convencia. Não deveria ser de ferro? Era original, todos asseguravam. Imitava um moinho, diziam outros. E, de fato, ele era circundado por um fosso que desaguava em uma represa. Também fiquei sabendo das alamedas, do parque com videiras, do bonde entre as duas charqueadas. Nada disso combinava com a minha idéia de vida pastoril que eu sempre associei ao Pampa. O que tudo isso fazia num lugar com ares de fazenda? A história me pareceu fantástica, como se eu estivesse à frente de um eldorado amazônico. Ao mesmo tempo, confuso, não entendia como esse conjunto estava perdendo-se aos poucos, sem a devida valorização. Afinal, o que significava tudo aquilo?
A história da Vila de Santa Thereza não pode ser contada sem que se mencione a trajetória do português Antônio Nunes Ribeiro Magalhães (1841, 1926). Como tantos europeus de meados do século XIX, ele buscou na emigração um caminho para a ascenção social. Em 1853, desembarcou sozinho no porto de Rio Grande com 12 anos de idade. O historiador Cláudio Antunes Boucinha, que pesquisou as charqueadas de Bagé, nos conta da imprecisão dos dados históricos, mas nos dá a certeza de que em pouco tempo Ribeiro Magalhães rumou para o interior do estado contratado para trabalhar no comércio, onde acabou por se tornar sócio de seu empregador. Depois disso, de cidade em cidade, até chegar em Bagé, criou suas próprias empresas e trabalhou na compra e venda de gado, acumulando capital suficiente para adquirir estâncias e se aventurar na incipiente indústria do charque.
A região do pampa gaúcho dependia dos matadouros de Pelotas e Montevidéu para escoar sua produção de gado. Quando, em 1891, foi criada a primeira indústria de charque em Bagé, essa atividade econômica prosperou com facilidade, atraindo a atenção de investidores como o nosso enriquecido imigrante português. Em 1894, Antônio Nunes Ribeiro Magalhães fundou a charqueada do Cotovelo substituindo-a por um novo investimento na charqueada de Santa Thereza, em 1897. Ali teve origem a Vila de Santa Thereza, um ambicioso empreendimento que, em pouco tempo, passou a abrigar duas charqueadas e uma fábrica de línguas em conserva junto à ferrovia. O aglomerado industrial chegou a empregar 800 operários que moravam em casas geminadas (foto 6) construídas pelo empregador. Na vila que se formou em torno das charqueadas era possível encontrar armazém, padaria, igreja, teatro, colégio, hospital, restaurante, sapataria, barbearias, alfaiataria e serraria. O núcleo urbano contava com iluminação pública, geração de energia elétrica, parque e coreto. Não era incomum que bageenses viessem de trem para assistir a uma peça de teatro ou participar de algum evento social.
Dominando a paisagem, um pouco mais distante e acessada por um alameda, foi construída a casa para abrigar o dono e sua família. Uma analogia com os engenhos nordestinos nos levaria a chamá-la de casa-grande. E de fato, dali partiam as ordens e era para ali que se dirigiam visitantes ilustres. Fotos da época testemunham os acontecimentos sociais que tinham lugar na Vila e o título de Visconde Ribeiro Magalhães, recebido em Lisboa em 1906, assegura a amplitude das relações comerciais que o então vice-cônsul português tinha com o exterior.
O Visconde se associou com os ingleses em 1912, para trazer os frigoríficos que lhe permitiria exportar carne congelada para Europa, mas a I Guerra Mundial atrapalhou seus planos e a “indústria do frio” não pode ser introduzida em Bagé nos moldes sonhados por ele. Depois de sua morte em 1926, as charqueadas seguiram administradas pelo seu braço direito Rodolfo Moglia, mas pouco foi acrescentado ao conjunto urbano. Nem mesmo a chegada das câmaras frigoríficas a partir de 1940 modificou o quadro de decadência econômica que se estabeleceu no negócio. O último abate em Santa Thereza ocorreu em 1962. Em 1964, a casa-grande foi reformada e ampliada para abrigar o Seminário Diocesano de Bagé e as demais instalações, abandonadas, foram se deteriorando aos poucos. Do teatro sobraram apenas vestígios das alvenarias junto ao solo. Depois que a Mitra Diocesana abandonou a igreja e o seminário, o processo de vandalização se acentuou rapidamente. Antigos moradores, entretanto, permaneceram na maioria das residências.
Em 1999, a Prefeitura municipal tombou a igreja de Santa Thereza e dois anos mais tarde, o coreto e as ruínas da casa-grande. Começam a surtir efeito os esforços que a comunidade fez para proteger o patrimônio das charqueadas. Campanhas de doação e o trabalho voluntário conseguiram estancar o processo de deterioração da igreja, mas não tiveram força para impedir que a casa do Visconde se transformasse em ruínas. A conquista de um aliado-patrocinador a partir de 2003 (Braskem) abriu um novo horizonte de possibilidades e a minha responsabilidade, a partir de então, mais do que coordenar a restauração daquele conjunto de edifícios, foi desenhar um caminho que lhe garantisse um novo futuro. Nele, deveria continuar impregnada a peculiar história dessas charqueadas.
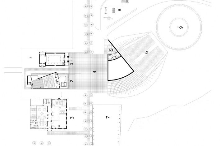
A primeira preocupação foi com a preservação de um bem maior, que fugia da minha alçada, mas não da minha responsabilidade de arquiteto. A intervenção pontual, onde tínhamos os recursos e o direito de intervir poderiam dar início a um processo de modernização incontrolada do restante do bairro. Era preciso proteger integralmente a Vila de Santa Thereza, hoje um bairro afastado do resto da cidade. Meu único recurso, nesse sentido, foi mostrar a possibilidade de se criar novas funções em todos aqueles edifícios e espaços abertos. O planejamento do bairro como um todo poderia ser feito sem que se perdesse as características que são tão caras para os que se preocupam com a preservação de referências materiais da nossa história. A planta Estudo de Valorização Patrimonial da Vila Santa Thereza (fig. 1) é o resultado desse trabalho. Não sei se houve um aproveitamento prático desse estudo, mas se serviu para mostrar o potencial que o bairro escondia, já terá cumprido seu papel.
O Estudo mostra que a comunidade, se quiser preservar os valores históricos da antiga charqueada, precisa investir no planejamento daquela região, direcionando para lá recursos públicos e privados. Os resultados podem ser surpreendentes. Em síntese, foi valorizado o antigo eixo da ferrovia na forma de um calçadão que passaria a ligar uma série de equipamentos urbanos. O programa inserido é fantasioso, é verdade, mas serviu para mostrar a potencialidade de uma utilização não apenas cultural e a possibilidade de que o sonho do Visconde voltasse a iluminar aquele lugar. O grande calçadão, um caminho da cidadania, começa em um belvedere – que permite a valorização das ruínas da casa-grande com iluminação cênica à noite – e termina numa praça onde foi proposta a construção de um memorial ao Visconde. No meio do caminho, em frente a igreja, uma praça para organizar e centralizar a Vila em sua nova fase. A antiga organização funcional, em torno dos trilhos está perdida para sempre. Não há mais o trem nem a estação, o asfalto roubou os passageiros, a vida em torno do trabalho nas charqueadas perdeu seu lugar. Resta criar algo novo dentro de uma idéia de continuidade e transformação, tornando viva, outra vez, a Vila do Visconde. Essa me parece a maior homenagem e o maior resgate que se pode fazer: a preservação imaterial do espírito empreendedor que presidiu a construção daquele conjunto urbano em plena campanha.
A Vila de Santa Thereza tem tudo para se tornar o principal acesso de Bagé, pelo menos do ponto de vista turístico. A antiga estação (foto 7), de 1884, pode ser aproveitada como um posto de recepção e informações turísticas e os demais prédios utilizados em programas de desenvolvimento de artesanato, incubadoras empresariais e atividades comerciais que possam ajudar a criar renda e fixar a mão de obra ainda residente na Vila. O aproveitamento comercial e industrial também é bem-vindo, como tivemos a satisfação de ver, durante às obras, uma empresa de transportes restaurando e adaptando uma das antigas charqueadas para sua sede.
Para a área que me competia trabalhar de fato, delimitada na figura 1, com seus quase 5ha, tivemos que planejar o trabalho em etapas. A primeira etapa foi concluída com a restauração da igreja, a restauração das fachadas do futuro museu e sede da Associação Pró-Santa Thereza, a reconstrução do antigo teatro, a praça, sanitários públicos e o arrimo e aterro da futura platéia do anfiteatro do coreto (fig. 2). A idéia inicial era a de fazer as obras em seis meses, mas o trabalho acabou sendo intermitente e muito mais lento do podíamos imaginar. Foram quatros anos de idas e vindas do construtor Divino Aguiar, do gerente das obras Gilson Zambeli e do arquiteto Marcelo Kiefer, que revezava comigo a fiscalização das obras. Lá também fizemos, com as responsáveis pela Associação Maria Luisa da Luz e Eliane Simões Pires e com Pedro Longhi, da Telos, um sem número de reuniões de modificação do projeto, para substituir materiais e processos construtivos. Sempre com a finalidade de baixar custos. Assim, muita coisa mudou entre o primeiro desenho e o que foi finalmente realizado, mas o conceito inicial do projeto ficou inalterado. O que houve foi uma adaptação cada vez maior às condições locais. Algumas, no meu entender, foram uma sorte, pois valorizaram o projeto, como o uso da pedra calcárea em gabiões e o reaproveitamento das cadeiras de madeira do antigo cinema de Bagé no teatro.
Para conter o aterro, pensado como uma forma de configurar uma área para grandes shows, a melhor solução encontrada foi um arrimo que também passou a definir um limite preciso para a praça. Além disso, ele abriu a possibilidade – sempre perseguida em meus projetos – de inserir um painel artístico. Teresa Poester, autora do trabalho nos conta que propôs uma “pintura (...) concebida para ser silenciosa e conviver com a paisagem de forma harmoniosa, criando rimas com os elementos naturais, sem impor sua presença”. Uma “continuação da paisagem local” contendo a “estilização dos varais” das antigas charqueadas. Outra contribuição importante das artes foi na igreja, que havia perdido irreversivelmente as pinturas que cobriam seu teto. Glênio Bianchetti, bageense radicado em Brasília, produziu uma via crucis para as naves laterais e pintou as telas do altar, criando uma atmosfera moderna para a antiga igreja.
A ideia de um aterro também foi útil para abrigar sanitários públicos e serviços complementares de forma discreta. O arrimo tinha sido pensado inicialmente para ser de pedra grês, mas a ausência dessas pedra na região levou a um re-estudo do problema. A descoberta da abundância e da beleza do calcáreo de Bagé trouxe a solução na forma de sua utilização em gabiões. A mesma pedra também foi utilizada nos pisos para refletir bastante luz, iluminando as edificações de baixo para cima.
O novo teatro Santo Antônio faz uma referencia à memória do antigo, dando destaque aos vestígios de alvenaria que sobraram junto ao chão. O volume do teatro original foi redesenhado através de uma estrutura de aço apoiada somente nos quatro vértices dessas alvenarias, um quadrilátero que mede 10,25m x 24,30. As vigas de aço são tipo duplo "T" e treliças secundárias apoiam terças. A mesma telha de cobertura também é utilizada como forro, formando um sanduíche que esconde toda a estrutura secundária. Era importante, para não perder leveza, que a altura das vigas principais não ultrapassassem 75 cm. A primeira solução foi a de utilizar uma chapa de 1,25cm de espessura, mas em função do custo, tivemos que optar por uma chapa de 0,625cm e um reforço de altura imperceptível no meio do maior vão. Foram coladas quatro chapas extras, duas sobre e duas sob as mesas, resultando uma altura total de 77,5cm, suficiente para vencer o vão maior. Os pilares tinham sidos pensados, inicialmente, para serem em cruz com o condutor de águas aparente, mas o desenho evoluiu para o fechamento do quadrante interno, que passou a servir de condutor das águas da chuva.
Sob essa estrutura se desenvolve o teatro de forma livre e descomprometida com a rigidez formal do anterior. As duas estruturas nunca se tocam. Eu já tinha experimentado essa idéia de trabalhar “na sombra” na Casa Fuke e tinha ficado muito satisfeito com a proteção que o edifício adquire. O conjunto, que tem expressão contemporânea, sem perigo de infundir dúvidas sobre a data de sua construção, buscou uma cuidadosa costura entre as diferentes construções que lhes são vizinhas. As paredes principais, externamente, são rebocadas e pintadas com as mesmas cores que a igreja e o museu. Alguns volumes, que configuram os sanitários e camarins são em concreto à vista e também são reproduzidos, com a mesma função no museu. Internamente as alvenarias foram revestidas de madeira, o que, além de propiciar uma boa acústica, cria uma atmosfera um tanto surpreendente para quem entra na sala (fig. 3, 4 e 5).
Na caminhada até aqui foi muito importante o apoio incondicional da prefeitura de Bagé, através da liderança do prefeito Luiz Fernando Mainardi e da secretária de cultura Jussara Carpes, e a presença dos parceiros locais Lojas Obino e Supermercados Peruzzo, além da Eletrobrás e, claro, a patrocinadora principal Braskem. Essa primeira fase foi importante porque tem mostrado, através da programação constante que se desenvolve ali, que é possível resgatar e proteger os valores tão preciosos que o Visconde Ribeiro Magalhães tinha plantado na sua comunidade. E o melhor é que as atividades estão sendo produzidas e desenvolvidas pela comunidade bageense, mostrando que a Vila voltou a fazer parte da vida da cidade. Entretanto, o resultado ainda não nos satisfaz: ainda há muito o que fazer para recuperar o brilho da Vila de Santa Thereza.
A casa-grande têm grande importância histórica e arquitetônica e tem atraído a visita de estudiosos e curiosos. Considerou-se que o estado de ruínas em que se encontra é suficiente para manter o entendimento de sua importância, desde que acompanhada de documentação exposta no museu. A distância em relação aos demais edifícios e o fato de seu acesso estar cortado pelo pátio de manobras da ferrovia ALL justifica a solução de consolidação e valorização das ruínas existentes com efeito luminotécnico. Ressalta-se que, do ponto de vista paisagístico, as ruínas ocupam posição privilegiada e podem ser sempre observadas desde a aglomeração urbana junto à antiga ferrovia convidando ao passeio exploratório (que pode ser feito cruzando-se os trilhos).
O próximo passo, ainda sem cronograma, é o de finalizar o museu (fig. 6), valorizar as ruínas da casa-grande, estender o calçadão em direção à antiga ponte do trem, realizar o paisagismo da gleba de forma a valorizar a paisagem natural, complementar a iluminação pública e a comunicação visual. O museu, que já teve suas obras iniciadas, ocupa duas casas geminadas ao lado do teatro. Pretende-se, com ele, preservar a memória do que foi uma residência da classe gerencial das charqueadas e criar um lugar para contar e mostrar a história da Vila de Santa Tereza. A idéia também é a de criar uma centralidade para o conjunto, servindo de sede da Associação Pró-Santa Thereza e lugar de chegada para os visitantes que buscam informação histórica ou mesmo um café.
Outros sonhos que estão no horizonte são a restauração da antiga estação de trem de 1884, a consolidação das chaminés das charqueadas, a posse da antiga fábrica de línguas em conserva para a criação de um centro de criatividade. E também se fala na possibilidade de espaços para trabalhar o artesanato. Como se vê, o desejo de realização de tantos novos projetos mostra que o futuro está de volta na Vila de Santa Thereza.
nota
1
Ao lado de Maria Luisa da Luz e Eliane Simões Pires que deram prosseguimento ao projeto depois do impedimento, por motivos de saúde, da presidente da Associação Pró-Santa Thereza. Pela Telos, nos acompanhava Pedro Longhi, administrador geral do trabalho.
sobre o autor
Flávio Kiefer, arquiteto, formado pela UFRGS em 1979, onde também concluiu o mestrado em 1998 e, atualmente, é doutorando ( PROPAR ). Leciona na ULBRA. Organizou os livros Fundação Iberê Camargo - Alvaro Siza (2008), Guia de Arquitetura Contemporânea de Porto Alegre, com Cláudia Costa Cabral (2007) e Crítica na Arquitetura, com Raquel Rodriguez Lima e Viviane Máglia (2001). Dirige o escritório kiefer ARQUITETOS. Também é autor das re-arquiteturas do Centro Cultural CEEE Erico Veríssimo e da Casa de Cultura Mário Quintana (com Joel Gorski).























